Histoire de la vallée d'Aoste
Présentation
Cartes physiques et de localisation du Val d'Aoste.
Le Val d’Aoste fait, malgré ses origines plutôt glaciaires (versants assez abrupts et profil en « U »), le lit de la Doire Baltée, rivière torrentielle, affluent de rive gauche du Pô. Si les affluents de cette rivière sont nombreux, il nous faut insister en particulier sur le Marmore, torrent de la Valtournenche, vallée commençant dans le cirque glaciaire du Cervin (Matterhorn), et débouchant dans la vallée principale à Châtillon. C’est en manière de verrou de cette vallée latérale que sont construits le village de Châtillon et son château. Insistons également sur la vallée de l'Evançon, le Val d'Ayas, où se situe le village de Challant, eponyme des Challant.
Lignes de crêtes, vallées et glaciers du Val d'Aoste.
Le val d'Aoste est délimité par les plus hauts sommets d’Europe (Cervin, Mont Blanc, Grand Paradis, Mont Rose…), entre lesquels des cols en altitude (plus de 2000 mètres), petit et grand Saint Bernard, facilitent le passage vers le Valais et vers la France.
Il s’agit donc d’un monde fermé, replié sur lui-même, socialement et démographiquement, et dans de nombreux aspects de la vie administrative et de la gouvernance. Mais il est en même temps, et depuis la période romaine, un lieu de passage, ouvert à la fois sur la plaine du Pô, par la vallée principale, le Valais et la France (mais ancienne Savoie), par les cols du petit et du grand Saint Bernard. Ce dernier rôle en rend la maîtrise essentielle pour les romains, dès l’antiquité, et pour la Maison de Savoie à partir du XIe siècle et tout au long de son histoire. Quand s’ouvrent d’autres voies de passages, le Simplon, le Saint-Gothard, le Montcenis, le Val d’Aoste perd de son importance (et de sa richesse !). Encore davantage replié sur lui-même, il évolue en vase clos jusqu’aux années ‘60 du XXe siècle, et la construction des tunnels du Mont-Blanc et du Grand-Saint-Bernard.
Routes principales et secondaires du Val d'Aoste.
Si ses habitants ont depuis toujours conscience d’appartenir à une collectivité originale, ils sont très liés avec la Savoie et le Valais, dont ils partagent la langue et la culture françaises, ainsi que l’usage de variantes de franco-provençal. Et ils sont très liés entre eux, d'un bout à l'autre de la vallée, par les modes de vie, la langue, et les lois "d'exception", par rapport au reste de la Savoie puis de l'Italie.
Textes de l'autonomie du val d'Aoste : charte des franchises d'Aoste de 1191 ; Règlement particulier pour le duché d'Aoste de 1773 ; statut d'autonomie de la Région Vallée d'Aoste de 1948.
L'histoire traite souvent l'ensemble de la vallée comme un seul bloc : c'est ainsi qu'elle est vue de l'extérieur, que ce soit par les gouvernants, les ennemis, mais également par l'église, ou même les familles prestigieuses comme celle des Challant. Au moment de l’unité italienne en 1860, puis le rattachement de Nice au territoire français, la "proximité alpine" avec Savoie et Valais disparaît, isolant le Val d’Aoste, et en en faisant le dernier territoire francophone d'Italie. Malgré un statut d’exception (autonomie régionale depuis 1948), la vallée en souffre de différentes manières (émigration massive, pauvreté endémique, abandon d’un côté, et volonté de le faire rentrer dans un statut "normal" du point de vue de l’état italien de l'autre). Depuis les années ’60, la région s’est modernisée, tirant profit de son potentiel hydro-électrique, de ses richesses minières, de son attrait touristique, et en redevenant un lieu de passage vers Suisse et France, par le creusement des deux tunnels routiers du Grand-Saint-Bernard et du Mont Blanc, puis par l'ajout de l'autouroute et des voies rapides qui y mènent.
Histoire ancienne

Coupe de la vallée centrale à Châtillon. A droite de la photo, l'adret, partie la mieux ensoleillée par le soleil qui vient du sud (c'est aussi la gauche orographique de la rivière /torrent Doire). A gauche de la photo, l'ubac ou l'envers, en franco-provençal local, partie la moins ensoleillée, en particulier en hiver, bien moins agréable comme lieu d'habitation.
Le peuple des Salasses (Ve s. av. J.C.), gaulois celto-ligures, occupe la vallée d’Aoste du VIIIe siècle av. J.C. jusqu’à l’arrivée des Romains, au Ier siècle av. J.C. La vallée était alors réputée pour ses mines d’or et de divers métaux, que les romains cherchent à conquérir au IIe et Ie siècle avant J.C.. En 25 av. J.C., Auguste et les romains l'emportent définitivement, soit, selon la légende, faisant 36000 prisonniers, vendus comme esclaves sur le marché d’Eporedia (Ivrée), ou enrôlés de force dans l’armée pour 8000 d’entre eux, soit, comme semblent en attester des sources nombreuses, en les intégrant dans le mode de vie et de pensée romains, et en fusionnant avec eux, soit un peu des deux. Auguste fonde alors Augusta Praetoria Salassorum, peuplée de 3000 vétérans de la légion, sur le lieu même de l’ancienne capitale des Salasses, Cordelia. La ville contrôle ainsi un réseau de routes et de sentiers, qui facilitent le commerce et les relations culturelles. Du point de vue stratégique, deux routes essentielles se croisent à Aoste, celle du Petit-Saint-Bernard vers la Gaule (col de l’Alpis Graia) et celle du Grand-Saint-Bernard vers l’Allemagne (Col de l’Alpis Poenina). Les principaux centres habités se trouvent sur ces voies stratégiques. Il en subsiste aujourd'hui les ponts de Châtillon et de Saint-Vincent, les restes de la route à Montjovet, Arnad, Bard et Donnas, et des portions de route à Arvier, Mécosse, Liverogne et Runaz.
Routes romaines au Val d'Aoste: de gauche à droite, Arc romain et route à Arnad ; route romaine à Monjovet ; portion de route et arc de support à Saint Vincent ; les trois ponts à Châtillon (pont romain en bas, pont médiéval juste au dessus, pont du XIXe siècle en haut).
Les romains améliorent sensiblement ce réseau, bien aménagé, pavé, utilisable hiver comme été, et construisent (ou reconstruisent radicalement) la route qui va de Eporedia (Ivrée) à Augusta Praetoria (Aoste, en 100 ap. J.C.), incorporant ainsi la Transpadanie au reste de l’Europe. De nombreux villages naissent, le long des nouvelles routes, principalement dans la vallée centrale (Châtillon devait s’appeler Castellum ou Castrium), davantage comme étapes de transit ou de surveillance que comme lieux d’exploitation. Font exception les localités minières (Cogne pour ses mines de fer, Arbaz et Courmayeur pour leurs mines d’or). La voie romaine passait à Donnas, entre Bard et Pont-Saint-Martin, où il reste un arc taillé dans la roche vive, de 4 m. d’épaisseur et 4 m. de hauteur. Un peu plus loin il reste la borne miliaire XXXVI qui indique le nombre de milles entre Donnas et Aoste (environ 53 kms d’Aoste).
Arc de Donnas et borne miliaire XXXVI.
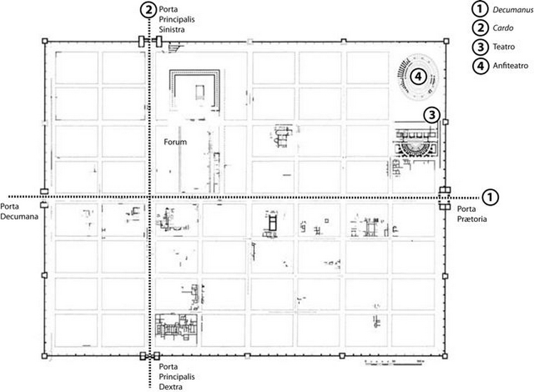
La ville d’Aoste est riche de monuments romains : l’Arc de triomphe d’Auguste, le Pont Buthier, les portes d’Aoste et ses remparts, un Théâtre, un Amphithéâtre de 10000 places, un Forum dont il reste le cryptoportique, des Termes.
Plan de la ville d'Augusta Praetoria Salassorum, Aoste en époque romaine.
Aoste connaît un fort développement à partir
de l’empereur Claude (41-54 apr. J.C.), centre routier, agricole
et minéralier, stratégiquement placée comme elle
est sur
la « route
des Gaules ».
Au IVe siècle, la vallée connaît un nouvel élan
de développement, avec l’amélioration du réseau
et la construction de villes et de villages. Ces infrastructures facilitent
probablement la christianisation de la région. On y constate l’apparition
de nombre d’édifices funéraires et de culte, et d’églises
paléochrétiennes dans les lieux les plus habités.
Les noms de villages et de hameaux en « saint » se multiplient
(Saint Barthélemy, Saint Vincent, Saint-Oyen…).
Le Moyen-âge
En 575 le roi mérovingien Guntram de Bourgogne conquiert les vallées d’Aoste et de Suse, en fermant avec ses propres postes de contrôle (les cluse froncorum) les principaux passages des alpes occidentales, prêt pour affronter des attaques lombardes. C’est le début de l’étroite relation politico-institutionnelle entre le Val d’Aoste et le monde franc. Suite à l’unification du monde franc sous Charlemagne (couronnement impérial de l’an 800 et l’institution du Saint Empire Romain Germanique), avec en particulier l’annexion du pays des Avares à l’Empire (VIIIe siècle), toute la zone alpine se trouve unifiée entre les mêmes mains, comme aux temps de l’Empire Romain.
Organisation de l'empire de Charlemagne (Revue l'Histoire, 2017)
Mais en 806, le monarque prédispose la division de l’empire entre ses trois fils. Le Val d’Aoste reste ainsi entre les mains de Charles, avec le petit et le grand Saint-Bernard, voie d’accès vers le nord de l’Italie. Comme au temps des romains, les carolingiens s’intéressent davantage à la voie de passage qu’a la vallée en elle même. Le val d’Aoste se trouve de fait incorporé, à la mort de l’Empereur, avec Valais et Pays de Vaud.
Au cours du Xe et XIe siècles, ces trois ensembles se trouvent réunis avec des territoires plus au nord et plus à l’ouest, dans le royaume de Bourgogne, quand se désagrègent les derniers héritages de l’empire carolingien. L’ordonnancement carolingien (comtés, marches et duchés, pilotés par comtes, marquis et ducs), décidé par nomination depuis les sommets de l’état, est progressivement remplacé, depuis le IXe siècle, par un processus de patrimonialisation des charges publiques, par lequel l’élite finit par considérer ces charges comme un bien personnel, privé, et ses fonctions comme un titre. On assiste de ce fait à une parcellisation progressive du pouvoir, en territoires de plus en plus réduits, où le château devient l’outil d’une puissance economique et militaire personnelle et familiale. Aux élites de l’état se joignent les grands propriétaires et les grands ecclésiastiques, qui développent à partir de leurs propriétés et territoires des formes de pouvoir et d’exercice du pouvoir analogues.
Si les termes restent les mêmes (comtes, marquis et ducs), la réalité des pouvoirs qu’ils représentent est désormais bien différente, et repose sur une base locale, même si elle s’accompagne des traditionnels droits et devoirs seigneuriaux : le droit de commander et de punir, le devoir de proteger.
Chateau de Cly, dans la commune de Saint-Denis (photo et plan).
Le château, mais surtout le donjon, marquent le paysage, promettent protection, et assurent domination. Leur fonction est autant militaire que symbolique : ils marquent l’entrée dans l’époque dite féodale (voir A. Perret, "Les châteaux forts en Savoie" in L'Histoire en Savoie, N°25, Mars 1972, Chambéry).
Châteaux de Savoie en 1325.
Voir A. Perret, "Les châteaux forts en Savoie" in L'Histoire en Savoie, N°25, Mars 1972, Chambéry, p.7.
Au Val d’Aoste comme ailleurs, c’est la période d’installation de ces enceintes fortifiées, en protection du donjon symbolique et garant de sécurité militaire, mais également de résidences seigneuriales et administratives, qui connaîtront au cours des quelques siècles du moyen-âge des développements spectaculaires. On y rend la justice, on y prélève les impôts, on y protège les populations (voir Cortelazzo Mauro, "La metamorfosi di un paesaggio alpino: l'incastellamento valdostano tra X e XIII secolo", in Bulletin d’Études Préhistoriques et Archéologiques Alpines, Archéologie aujourd'hui, 50eme anniversaire de la Société, 1967-2017, XXVIII, Aoste 2017, pp. 181-220).
Maison forte, dite "Château d'Avise", fin XVe s., commune d'Avise, Val d'Aoste.
Si le château marque le pouvoir des très grandes familles, la maison forte et la tour isolée marquent celui des milites, proches du seigneur, et membres de ses forces armées. Plus proches des villageois, en charge du contrôle du territoire, ils n’en sont probablement que davantage redoutés par les populations. Ainsi le détenteur de maison forte joue un rôle sur son territoire et contribue à l'encadrement de l'espace rural.
Malgré tout, bien que dotés d'une certaine autonomie politique, les détenteurs de maisons-fortes n'en restent pas moins contrôlés par leur pouvoir « de tutelle » (seigneur, comte, marquis, duc…) : ils ne peuvent ériger de tours trop hautes, ni façonner des créneaux à leur guise, ni exercer le pouvoir à l’encontre des intérêts de leur seigneur. Avec le passage du temps, les maisons fortes aussi prennent valeur de résidence nobiliaire, et le demeurent longtemps, à l’instar de la maison forte d’Entrèves, encore aux mains des comtes Passerin d’Entrèves et de Courmayeur.
Détail de la bretèche, au dessus de la porte d'entrée de la Maison forte Passerin d'Entrèves, construite en 1351, hameau d'Entrèves, commune de Courmayeur.
Le petit territoire du Val d’Aoste, 80 km sur 40 km, voit entre XIe et XIIe siècles le développement de plus d’une centaine de ces entités, châteaux, tours et maisons fortes, en partie construits ex nihilo, en partie rebâtis à partir de constructions romaines préexistantes. Cette continuité se marque souvent dans les noms de lieu : castrium, petite fortification en latin, est certainement à l’origine du toponyme Châtillon, à côté duquel château trône, jusqu’en 1855, une tour heptagonale romaine, probablement accompagnée d'une structure fortifiée initiale, désormais ensevelie sous le château actuel et sa maison de gardiens.
Au terme de ce processus de desagrégation, on assiste à la mise en place de seigneuries, dites territoriales banales, qui consistent en un ensemble de droits très divers, ravis progressivement par les seigneurs aux autorités publiques préexistantes, et qui s’imbriquent inextricablement les uns dans les autres, ressortant autant de l’autorité publique que de droits économiques divers sur les ressources d’un territoire. Cela conduit durant les XIe et XIIe siècles à la formation d’innombrables sphères de pouvoir, non seulement militaire, mais également judiciaire. Et en échange de protection (guerre et justice) et de services (moulins, fours, ferroneries…), on impose aux populations des taxes et des prestations (corvées), autrefois du ressort exclusif de l’autorité publique.
Carte des seigneuries au Val d'Aoste au XIVe siècle, d'après Corni Francesco, Segni di Pietra, torri, castelli, manieri e residenze della Valle d'Aosta, Associazione Forte di Bard, Saint-Christophe, 2008, p.25.
Ces processus sont à l’œuvre à toutes les échelles, et c’est ainsi que dans le royaume de Bourgogne lui-même, la famille des Umbertides (descendants de Humbert, fondateur de la dynastie des comtes de Savoie), membre de l’aristocratie locale militaire, développe peu à peu son pouvoir au cours du XIe siècle. Suite à la mort de Rodolphe III de Bourgogne, progressivement, les futurs comtes de Savoie développent leur pouvoir sur une partie du Piémont, en Valais et Pays de Vaud, et sur le Val d’Aoste, dont la dépendance territoriale et administrative reste toutefois en suspens jusqu’au XIIe siècle. Le contrôle des cols du Petit et du Grand Saint-Bernard leur donne un pouvoir économique remarquable, notamment contre leur principal adversaire local, l’évêque d’Aoste.
Si initialement les deux pouvoirs participent de la même autorité et collaborent au contrôle du territoire, les relations se tendent au fur et à mesure qu’elles sont mises en concurrence, et aboutissent à la création de deux groupes de vassaux aux intérêts différents. Ce n’est alors qu’en fin du XIIe siècle qu’on constate que les cercles de vassaux du comte et de l’évêque se rapprochent, et font désormais partie d’une seule et même catégorie. Un équilibre définitif ne sera trouvé réellement qu’au XIVe siècle. Le pouvoir de l’évêque est progressivement dissous dans celui du comte, porté, en particulier dans la Vallée d’Aoste, par les très fidèles vicomtes, qui deviendront par la suite les Challant. Et au XIVe siècle il ne reste que très peu de vassaux directes de l’évêque en Val d’Aoste, le comte de Savoie et l’empereur en ayant récupéré la plupart.
Le comte Thomas Ier accorde au Val d’Aoste, en 1191, la Charte des Franchises d’Aoste : la population sera fidèle au comte de Savoie qui, en échange, n’exigera aucun tribut sans l’autorisation des autorités locales. Elle détermine les devoirs des citoyens envers le pouvoir central et libère les habitants d’Aoste de la soumission aux vassaux valdôtains et du paiement des gabelles ordinaires.
La Charte des Franchises d’Aoste de 1191.
La famille de Challant apparaît plus ou moins à cette période. Originaire probablement du Monferrat, elle porte le titre de vicomte d'Aoste jusqu'en 1295 et celui de seigneur de Challant en 1200, puis de comte, à partir de 1424. La famille reçoit son patronyme et ses fiefs au XIIIe siècle, lorsque le même comte Thomas 1er, lui donne le château de Ville-sur-Challant, à Challant-Saint-Victor. Et c’est à partir du début du XIIIe siècle que, probablement après achat, ils sont investis de la seigneurie et du château de Châtillon. Ils font reconnaissance, pour le château comme pour la seigneurerie, au comte de Savoie pour la première fois en 1242.
Premières armoiries des Challant, avec d'or à l'aigle de sable, couronné d'or, becqué et armé de gueule, qui est la vicomté, en 2 et en 3, et d’argent, au chef de gueules à une cotice de sable brochant sur le tout, qui est Challant en 1 et en 4.
Au cours du XIIIe siècle les comtes de Savoie assument progressivement le rôle de coordinateurs des pouvoirs locaux, en inféodant y compris des juridictions et des droits divers. Ils atteignent ainsi une réelle suprématie politique sur l’ensemble de leurs territoires. Par la coordination et l’intégration progressive des pouvoirs locaux à leur propre dominium, ils établissent les bases d’une principauté régionale, autant que possible centralisée.
Après des siècles de particularismes seigneuriaux, au début du XIIIe siècle, une autorité centralisée émerge à nouveau, qui s’impose, de manière souvent hétérogène mais solide, en s’adaptant aux réalités seigneuriales et territoriales. Petit à petit elle reprend le contrôle de villes, châteaux et autres lieux, en mains jusques là d’organismes territoriaux mineurs. Sa reconnaissance définitive intervient en 1310, grâce à la constitution du comté de Savoie en principat par l’empereur Henri VII.
La Savoie aux XIIe et XIIIe siècles
Si au cours de XIIe et XIIIe siècle le domaine direct (soit celui où le comte exerçait directement son pouvoir de commandement et de coercition) se limite au haut Val d’Aoste (Valdigne), la vallée du Grand Saint-Bernard, le château de Bard (après 1242), le bourg de Villeneuve et la seigneurie de Montjovet (après rétrocession par les Challant en 1295), pour de multiples raisons (extinction des familles seigneuriales, achats, confiscations…) les comtes de Savoie acquièrent Aymavilles (première moitié du siècle), Châtillon (en 1350, par extinction de la première branche des Challant-Châtillon), Sarre (1359), Quart, Brissogne, et Oyace (1378) puis Cly (1378 aussi). Sur la multiplicité de familles qui détenaient des parts de pouvoir local, seules 22 résistent, et (presque) seule celle des Challant s’affirme comme une famille de premier plan (vicomtes jusqu’en 1295, seigneurs de Challant depuis 1200). Ils sont les détenteurs d’une seigneurie banale sur une grande partie de la basse vallée d’Aoste et le Val d’Ayas (vallée de l'Evançon), et négocient leur fidélité et le retour de la vicomté contre la seigneurie de Montjovet, récupérée peu de temps avant par les Savoie. Les vicomtes laissent la place à de nouvelles administrations, militaires, de la justice et des impôts (châtelains, baillis, mestraux…).
C'est à cette époque aussi, comme en France, que s'établissent et se figent les nouvelles hiérarchies nobiliaires, qui se manifestent par des titres de noblesse particuliers, hérités mais détournés de leurs fonctions premières carolingiennes.
Malgré tout, les Challant continuent, dans toutes leurs branches, d’exercer le pouvoir, non seulement au Val d’Aoste, en exerçant certaines de ces nouvelles charges, mais aussi auprès du pouvoir central du nouveau comté, puis du duché de Savoie (à partir 1416).
Au début du XVe siècle, le comté de Savoie comprenait 13 baillages, la vallée d’Aoste en constituant un à elle seule. Il fut subdivisé en 1268 en trois châtellenies (Châtel-Argent, Aoste et Bard), auxquelles s’ajoutèrent au cours du XIVe siècle Brissogne, Cly et Quart. En 1416, au moment de la constitution en duché, il en restait 5, celle de Brissogne ayant disparu. Chaque châtellenie était à son tour subdivisée en mestralies. Cette nouvelle organisation provoque la diminution puis le retrait progressif des droits seigneuriaux, et l’augmentation du nombre des administrateurs, qui en viennent à faire partie d’une « élite » valdôtaine de fonctionnaires, au service direct du pouvoir comtal puis ducal dans la vallée.
Chaque mestral était en charge de surveiller le respect des droits du comte, souvent assez divers, dans une circonscription sans château. Il était le principal agent exécutif du châtelain, en particulier dans les domaines militaires et financiers (imposition d’amendes). Il se devait de connaître parfaitement le territoire de sa mestralie, et la totalité des droits qui s’y appliquaient, ce qui tenait parfois du casse-tête vu la complexité et la discontinuité des pouvoirs seigneuriaux qui pouvaient s’y croiser. La circonscription regroupait en général trois ou quatre finages (village principal et ses hameaux), dans un rayon de 8 à 10 km du siège, parfois plus dans les zones de haute montagne inhabitées. Les châtellenies, essentiellement juridictions militaires, contrôlaient en général deux ou trois mestralies, un peu plus dans les zones de haute montagne (pas plus de 15 km de rayon à partir du siège).
Incipit du compte-rendu de François de Challant pour la châtellenie de Cly en 1423-24. Dans Anselmo Pession, Comptes de la Châtellenie de Cly (1414-1424), Bibliothèque de l'Archivum Augustanum, XL, Aoste, 2016, p.241.
Un châtelain entretenait son ou ses châteaux, au frais du comte, à qui il rendait un compte régulier (annuel ou biannuel) de ce qu’il coûtait et de ce qu’il rapportait (voir Anselmo Pession, Un esempio dell'amministrazione medievale sabauda: il primo conto della castellania di Quart e Oyace (1377-1378), Regione Autonoma Valle d'Aosta, Aosta, 2015). Il était capable de le mettre en état de guerre et de siège en quelques heures. Après l’apparition de juges de métier, dans la deuxième moitié du XIIIe siècle, il ne garde qu’un très petit rôle dans le domaine de la justice. Il garde malgré tout les pleins pouvoirs dans le domaine de l’administration locale (sur les châtellenies, voir Beatrice Del Bo, La valeur d'un château : le contrôle du territoire en Vallée d'Aoste du XIIIe au XVe siècles, Bibliothèque de l'Archivum Augustanum, Aoste, 2019).
Le balivat (baillage) regroupe de 5 à 15 châtellenies, sur lesquelles le bailli a prééminence militaire et administrative au nom du comte. Les résidences des baillis sont figées dans certaines châtellenies, Châtel-Argent, au nord-ouest d’Aoste, dans la vallée centrale, pour le Val d’Aoste. Les baillages des Savoie sont étonnamment stables dans le temps, dans leur siège comme dans leurs limites. Celui du Val d’Aoste couvre tout le cours de la Doire Baltée et de ses affluents, depuis le pied du Mont-Blanc jusqu’à Pont-Saint-Martin, à la sortie de la vallée vers le Piémont, avec le contrôle des passages du Petit et du Grand Saint-Bernard. Comme même les seigneuries situées entre les châtellenies des Savoie finissent par dépendre de ces derniers, au travers de l’instrument formel que sont les inféodations, les baillages forment assez rapidement des blocs cohérents, aux contours quasi-linéaires, et aux distances à parcourir en cas d’urgence limitées à une journée de voyage. Et comme tous les sièges des baillages se trouvaient à moins de 200 km de Chambéry, capitale administrative des Savoie, dès la fin du XIIIe siècle, le comte, ses officiers ou ses envoyés pouvaient en peu de jours (5 à 6) se trouver sur n’importe quelle partie de leur territoire.
Localisation des principaux châteaux, tours et maisons fortes au Val d'Aoste (d'après Moiso B., Castelli e torri in Val d'Aosta, CRAL Telecom, Consiglio Regionale Piemonte e Valle d'Aosta, Torino, 1997, catalogue d'exposition).
A la différence de ce qui est advenu dans le Piémont, où la puissance des grandes abbayes fut dominante durant toute la période médiévale (voir Carlo Tosco, Michele Luigi Vescovi, "L'architecture romane en Piémont et dans le Val d'Aoste. Etat des questions" in Bulletin Monumental, Année 2016, 174-1, p.21-34), au Val d’Aoste ce sont les pouvoirs laïcs, feudataires majeurs ou mineurs, qui décident de la construction des nombreuses tours, maisons-fortes ou châteaux disséminés sur le territoire. Plus que par nécessité militaire ou de défense, dans un territoire, qui fut presque exempt de guerre au cours de son histoire médiévale ou moderne, ces châteaux sont bien davantage des symboles du pouvoir et de la richesse de leurs bâtisseurs, objet d’orgueil et de fierté (voir Cortelazzo Mauro, "La metamorfosi di un paesaggio alpino: l'incastellamento valdostano tra X e XIII secolo", in Bulletin d’Études Préhistoriques et Archéologiques Alpines, Archéologie aujourd'hui, 50eme anniversaire de la Société, 1967-2017, XXVIII, Aoste 2017, pp. 181-220). Le réseau très serré qui en existe en Val d’Aoste s’explique par les nombreux enfants, et l’émiettement de la propriété qui en est résulté à partir du Xe siècle, chacune des branches des familles de puissants de la vallée voulant égaler le prestige et le pouvoir des autres branches et des autres familles. Ces bâtiments surgissent principalement le long des voies principales de la vallée, nœuds routiers, zones fluviales, là où ils peuvent être vus et admirés. Les châteaux primitifs exploitent la structure géomorphologique du terrain, et sont édifiés sur des hauteurs, des épaulements rocheux, des pics, en reprenant souvent des structures préexistantes (Graines, Monjovet, Cly). Les châteaux les plus tardifs, davantage habitations de prestige que résidences fortifiées, s’installent dans les lieux les plus agréables, exposés au soleil, et agréablement entourés de paysages agricoles florissants (Fénis, Châtillon, Issogne), même si quelques abruptes et imposantes forteresses monobloc rectangulaires sont encore construites au XIVe siècle (Ussel, Verrès).
| Château de Graines (VIe, XIIIe et XVe siècle) | Château de Fénis (XIe siècle, autour de 1340, XXe siècle) | Château d'Ussel (ca 1345) | Château de Verrès (1390) | Château d'Issogne (XIIIe siècle; 1490) |
Evolution depuis le château primitif de montagne (Graines) vers le "palais de montagne" (Issogne). Dessins et relevés extraits des travaux de Carlo Nigra, dans Moiso B., Castelli e torri in Val d'Aosta, CRAL Telecom, Consiglio Regionale Piemonte e Valle d'Aosta, Torino, 1997, catalogue d'exposition)
À partir du XIVe siècle, l’abandon progressif des voies valdôtaines provoque une décadence du Val d’Aoste, par le progressif affaiblissement du trafic par ses cols. Qui plus est, les comtes de Savoie perdent le Valais au XVe, ce qui neutralise le Grand-Saint-Bernard. Le duché d’Aoste est ainsi devenu un cul-de-sac.
Portait d’Amédée VIII (Collection Reggia di Venaria Reale, XVIIIe siècle)
L’étendue territoriale des états des Savoie rejoint son maximum avec Amédée VIII (1383-1451). Et c’est en 1416 que le comté de Savoie est érigé en duché. Une des premières actions du nouveau duc est de discipliner ultérieurement la multitude d’autonomies locales dont son état était composé. Il impose la création de nouveaux outils de gouvernement (conseils régionaux, chancellerie, chambre des comptes…), s’inspirant de différents modèles européens, comme la France ou la Grande Bretagne.
Le Val d’Aoste, francophone, est considérée de plein droit comme partie des états transalpins du duché, et ses délégués prennent part aux assemblées des états de Savoie, et non à ceux du Piémont. Comme pour le pays de Vaud, son système juridique repose sur le droit coutumier, et il obtient donc en 1430 d’être exempté du respect des Statuta Sabaudiae, quand ceux-ci sont contraires au dit droit coutumier.
Manuscrit des Statuta ducalia Sabaudia, rédigé au cours du XIIIe siècle, et daté des années 1474-77 pour ce manuscrit conservé aux Archives de Nice.
Par ailleurs, comme partout dans le duché, une autre subdivison administrative est alors surimposée aux baillages: celle qui distingue les comunitates domini, sous administration directe du duc (et de ses officiers), et les terre nobilium, administrées directement par leur seigneur, intermédiaire entre le duc et les habitants de son territoire. Une troisième catégorie est constituée par les territoires sujets à une seigneurie ecclésiastique, qui jouissaient d’une totale exemption d’impôts, et de larges espaces d’autonomie dans le domaine de la justice.
Au val d’Aoste comme ailleurs dans le duché, les Assemblées des trois états se réunissaient régulièrement pour savoir comment répartir les subsides demandés par le duché aux trois catégories d’habitants de ses états. Dans le baillage du Val d’Aoste, où les Savoie poursuivent au XIVe et XVe siècles leur politique d’extension de la domination directe aux dépens des juridictions seigneuriales, les nouveaux ducs utilisent parfois a contrario, mais très habilement, l’instrument des inféodations, afin de se rapprocher de ces familles et seigneurs qui, loin de représenter un danger pour le néo-duché, confortent au contraire par une fidélité sans faille ses prétentions à l’homogénéisation et la stabilisation de l’état. Et si parfois les communautés elles-mêmes demandent à rester sous la domination directe du duc, l’intérêt des états l’emporte assez systématiquement.
Les Challant continuent ainsi à récupérer, échanger, et négocier avec les ducs de Savoie, au long des XIVe et XVe siècles, des seigneuries, soit en règlement de dons ou de dettes du duc envers la famille, ou de la famille envers le duc, soit pour tenter de négocier le passage en force de successions et héritages contraires à la loi familiale, comme celui du comte François à sa fille Catherine, en 1452.
Parmi les Challant, il est utile de signaler le cas de Georges de Challant-Varey. Originaire de Usson, Retourtour et Varey, dans la région Lyonnaise, il devient clerc puis chanoine de l’église de Lyon. Très grand voyageur pour son époque, il fait ses études entre Avignon, Turin, et Rome, puis se rend à Paris, Reims, Strasbourg, Florence, Pise, et Milan, toujours en grande pompe, digne de son état et de celui de sa famille.
Cloître de la collégiale de Saint-Ours, construit par des moines augustiniens au XIe siècle, mais dont Georges de Challant fit reprendre les voûtes en croisée d'ogives (certains châpiteaux portent ses armoiries), en même temps qu'il faisait bâtir le prieuré tout proche, dans le style piémontais et lombard, en briques, autour de 1468.
Il amène par la suite au Val d’Aoste une connaissance des arts, de l'architecture et de la culture qui était inégalée à son époque, et qui lui permet de développer de grands travaux, tout au long des nombreuses charges, ecclésiastiques ou non, qu’il obtient sur place ou aux alentours. Il fait toujours embellir et enrichir les bâtiments dont il a la charge, mais reste célèbre surtout pour son rôle dans la construction du prieuré de Saint-Ours, en Aoste, puis par la construction du château d’Issogne, joyau architectural de la famille Challant, commencé en 1494 et fini au tout début du XVIème siècle (1504?).
La période moderne : décadence et renaissance
Coutumes générales du duché d'Aoste, ici dans leur édition de 1684.
La dignité de « Gouverneur et Lieutenant du duché d’Aoste » est instituée en 1496, que Philibert de Challant exerce de 1509 à 1517, comme son fils René de Challant après lui. C’est en l'année 1496 également que, en l’honneur de la Maison des Challant, Pierre Du Bois commence la rédaction de la « Chronique de la maison de Challant ».
Le 28 février 1536 l’Assemblée générale des Trois États, pilotée par son gouverneur René de Challant, crée le « conseil des Commis », exécutif de vingt-quatre membres, plus un Secrétaire, pour suivre les affaires jour par jour. Le même jour, elle confirme la « Charte des Franchises » et choisit de rester catholique et fidèle aux Savoie, malgré des tentatives de déstabilisation religieuse et politique des Genevois protestants, tout proches.
Et quand, de 1536 à 1559, François Ier occupe les États de Savoie, René de Challant, qui dirige le conseil des commis en personne, négocie efficacement (1537) un traité de paix avec le roi de France, pour que la Vallée ne soit ni occupée ni taxée à outrance, à l’instar du comté de Nice. A partir de cette date, « l'Assemblée Générale des Trois-États » et son exécutif, le Conseil des Commis, assument tous les pouvoirs dans la Vallée d’Aoste. L'Assemblée organise une armée, s’occupe de la défense du territoire, de l’entretien des routes et des châteaux, punit la contrebande, construit un Hôtel des Monnaies (1549), etc…
Le 22 septembre 1561, le duc Emmanuel-Philibert signe l’édit de Rivoli qui déclare le français langue officielle (essentiellement administrative) de la Vallée en remplacement du latin.
Le Val d’Aoste fut donc, pour un temps, déjà presque autonome, même si encore sous la juridiction formelle des ducs de Savoie. A partir de 1580, Emmanuel Philibert, dans une Lettre patente promulguée le 1er mars, définit le Val d’Aoste comme « une province séparée qui ne dépend de nos autres provinces deçà ni delà les monts, et qui a ses lois et impositions à part ».
Mais la monarchie de Savoie, à l’instar de la France de Richelieu et de Louis XIII, cherche à se centraliser de plus en plus. L’ancienne capitale, Chambéry, trop proche des territoires français, est progressivement remplacée par Turin, choisie comme capitale après le traité de Cateau-Cambrésis, et la restitution de ses états au duc de Savoie. C’est d’ailleurs René de Challant qui met en œuvre cette restitution, en signant pour le duc à Cateau-Cambrésis même, puis en rouvrant le Sénat de Chambéry et en mettant en place de celui de Turin. Du coup, de nouvelles routes sont privilégiées, entre Chambéry, l’ancienne capitale, et Turin, capitale depuis 1563, qui voient se renforcer le passage par le Val d’Aoste.
Traité de Cateau-Cambrésis tel que ratifié le 7 avril 1559. Tableau: La paix du Cateau-Cambresis ou la réconciliation symbolique entre la France et l'Espagne. Huile sur bois, école française, XVIe siècle, Palazzo Pubblico (Sienne).
Malheureusement, d’autres coups du sort viennent ébranler ce peu de solidité retrouvée par la vallée. Il s’agit en premier lieu de la peste qui tue en 1630 les deux tiers des habitants (environ 70.000 personnes sur 105.000). Il s’agit également, au tournant du siècle, de nouvelles invasions françaises, qui, en 1691 puis 1704-1706, affaiblissent encore la province.
Devenue essentiellement agricole (en 1777, la pomme de terre est plantée pour la première fois à Châtillon), on y connaît quand même, comme ailleurs dans le duché, le développement d’une bourgeoisie de fonctionnaires savoyards et de commerçants, nécessaire à la gestion de la région, et le groupe particulier des notaires et autres experts, utiles lors du passage progressif de la propriété de type féodal vers une structure foncière plus moderne. Cette nouvelle population s’installe dans des constructions en pierre caractéristiques, assez cossues par comparaison avec l’habitat traditionnel de ces régions.
Par ailleurs, la volonté des Savoie de centraliser leurs états se poursuit au détriment de l’autonomie valdôtaine. Ainsi, les « Royales Constitutions » du 24 novembre 1770 du roi Charles-Emmanuel III abolissent la législation valdotaine, ses libertés, l’Assemblée des Trois États. L’Église catholique, particulièrement traditionaliste et réactionnaire au Val d’Aoste, mais qui défend l’autonomie, s’oppose à ces mesures : en vain ! Et à partir de 1782, elle subit elle même une profonde réorganisation. Le Conseil des Commis, qui est déjà monopolisé par les grandes familles, et en particulier par les Challant, devient uniquement consultatif et perd donc tant son rôle que son attrait. Ses deux derniers membres meurent en 1859.
Dans les faits, il faut admettre le duché d’Aoste nécessitait que l’État s’occupe davantage de lui. Il obtient ainsi, à partir des années 1760 l’amélioration des routes (route dite de la Mongiovetta) pour faciliter le passage du Piémont au Val d’Aoste. On construit les ponts de Châtillon et d’Aoste en 1772 et 1776.
Pont sur le torrent Marmore, construit à Châtillon en 1772 (carte postale du XIXe siècle, collection privée).
En contrepartie, deux grandes réformes contribuent a ramener le Val d’Aoste dans le rang des autres états des Savoie. En 1771, la réalisation d’une première cadastration exhaustive (mappe sarde), dans toutes les communes de la vallée, permet au fisc de prendre la mesure exacte de ce qu’il peut percevoir dans la vallée. En 1782, dans un train de mesures visant la centralisation et l’amélioration de l’administration, une grande réforme des revenus des paroisses et de leurs curés est entreprise, qui fixe désormais leur revenu, et en régularise les montants pour tous.
Extrait de la page 1 de la zone 1 (sur 3) du cadastre Sarde de 1771 à Châtillon (voir http://cordela.regione.vda.it/). Il en existe deux versions, une dans l'ordre géographique des parcelles, l'autre dans l'ordre alphabétique des propriétaires. Mais le Val d'Aoste dans son ensemble a été dispensé de la cartographie, inutile sur une très grande partie du territoire, et très dispendieuse.
Pendant la Révolution française, le Val d’Aoste est occupé en 1798 puis annexé à la France en 1802. Le 20 mai 1800, Napoléon passe le Grand-Saint-Bernard avec ses troupes, 50.011 hommes, 10.377 chevaux, 750 mulets, 76 pièces d’artillerie, 49 traîneaux et 103 voitures. Tout ce monde est nourri au frais de l’hospice du col (21.724 bouteilles de vin !), puis des communes de la vallée. La permanence française dans la vallée laisse dans les archives municipales et dans l’Archivio di Stato de Turin la note de tout ce dont les villageois et les municipalités demandent le remboursement, mais sans succès : transports, vivres, vin, occupation de lieux, dégâts divers provoqués par les militaires ou d’autres occupants.
Demande de remboursement de services et marchandises (Vivres,
Liquides, Fourrages, Nombre de voitures, Logements) pris par les
troupes françaises
de Napoléon, et refus systématique de remboursement de la Regia
Commissione di Liquidazione, Archives Municipales de Châtillon,
25 vendémiaire
an VI (16 octobre 1798) au 12 floréal an VII (1er mai 1799)..
Les 10 jours du premier passage de Napoléon furent rallongés de quinze jours, qu’il lui fallut pour prendre le fort et château pourtant médiéval, de Bard, défendu seulement par 400 soldats autrichiens, qui lui résistèrent du 19 mai au 1er juin, avant de capituler. Si bien qu’après la bataille de Marengo, gagnée, il fit raser au sol, pierre sur pierre, le fort de Bard. Il n'est par la suite reconstruit qu’en 1830-1838, sous la forme qu'on lui connaît désormais.
Lettre
de Napoléon au Général
Lannes, sur la prise du fort de Bard, du 13 Mai 1800 (Correspondance
de Napoléon Ier,
Plon-Dumaine, Paris, 1861, p.272-273.).
A la chute de Napoléon, le Val d’Aoste est restitué au royaume de Sardaigne en 1814, puis intégré dans le tout nouveau royaume d’Italie en 1861.
La période contemporaine : unité italienne et séparation des Savoies
A partir de 1861, malgré la résistance des valdôtains,
les lois et la langue italienne sont imposées à toute
l’Italie,
sans adaptations régionales, ce qui provoque une importante émigration,
d’environ 20%, de la population valdôtaine (20000 personnes)
vers la France et la Suisse Romande. Imposé d’abord aux
instituteurs et enseignants, l’italien devient la langue de la
fonction publique et des tribunaux à partir de 1881, faisant
fi de la spécificité culturelle
de la Vallée d’Aoste. Le service militaire dans d’autres
régions, l’arrivée de fonctionnaires italiens,
la présence
de plus en plus forte de touristes étrangers, tout cela contribue à répandre
l’usage de l’Italien.
Gare de Châtillon au tout début du XXe siècle (carte postale, collection privée).
Bien que
le chemin de fer qui rapproche Aoste de Turin soit inauguré en
1886, la région reste isolée et en forte perte
démographique.
Après l’Unité, la métallurgie et les
mines entrent en crise : 76,9% des habitants travaillent dans
l’agriculture, 11,6%
dans l’industrie et 11,5% dans le tertiaire. Malgré de
grands efforts (augmentation de production de « fontina »,
culture de la pomme Reinette du Canada, ouverture d’écoles
d’agriculture...),
l’agriculture décline aussi (oïdium et phylloxéra de la vigne, rendement laitier médiocre, crues de la Doire...).
Pourtant, la richesse hydroélectrique favorise l’industrialisation
: Aoste est la première ville italienne électrifiée, avec Milan, dès 1885. Même si la sidérurgie, fondamentale en période
de guerre, le textile et la chimie (engrais) se développent, le Val
d’Aoste exporte surtout de l’électricité dans les
autres régions.
Centrale
hydroélectrique de Covalou, à Châtillon,
sur le torrent Marmore, en 1955 (carte postale, collection
privée).
La période
fasciste divise profondément les valdôtains,
mais fait leur union dans l’après-guerre.
Le courant, animé par
Federico Chabod et Alessandro Passerin d’Entrèves,
habitant du château de Châtillon, propose
un statut particulier dans le cadre d’une Italie
républicaine unifiée et contribue à la
mise en place d’un statut d’autonomie, adopté le
7 novembre 1945. L’Italie républicaine, par
la loi du 26 février
1948, reconnaît l’autonomie de la Région
et accorde des facilités économiques et fiscales à la
plus petite des régions italiennes, en particulier
la libre disposition par la Région
de toutes les eaux publiques.
Si dans les années ‘60 l’industrie absorbe un
peu plus du tiers de la population active, et l’agriculture
un peu plus du quart, c’est le tourisme qui amène révolution économique
au début des années ‘70 et qui reste encore l'atout
majeur pour l'économie de la vallée. Pourtant,
lorsque les industries s’installent pour profiter de la richesse
en énergie électrique, la Région recommence à se
développer. Mais l'activité
industrielle, comme l'ancienne fabrique textile de la SOIE de
Châtillon (ou MONTEFIBRE, appartenant à la société mère
MONTEDISON, fabricant de la viscose, fermée depuis 1985, laissant
1200 personnes sur le carreau), a tendance à péricliter, depuis que
les réseaux de transport d'énergie permettent d'alimenter des usines
dans
des lieux
plus accessibles,
mieux desservis par les transports et plus proches des grands centres
industriels de Lombardie, de Vénétie ou du Piémont.
Les châteaux, atout touristique du Val d'Aoste.
L’ouverture des tunnels routiers du Grand-Saint-Bernard et du Mont Blanc en 1964 et 1965, et plus récemment l'installation de l'autoroute sur toute la longueur de la vallée principale facilite aussi l’épanouissement et le développement exceptionnel du tourisme.
Carte des stations de ski du Val d'Aoste
Au tourisme montagnard initial, désormais très diversifié (ski nordique, raquettes, activités de station diverses...) se sont ajoutées les possibilités d'agri-tourisme, et de tourisme culturel, visite de châteaux et musées divers (archéologie, art moderne, musée des alpes...). Et la région travaille au développement de formations (écoles, instituts, université...) qui permettent de former les valdôtains à l'exploitation la plus riche et respectueuse des ressources possibles.




























